| 关于环保型高分子材料助剂生产项目建筑设计方案总平面图的公示 |
依据《中华人民共和国城乡规划法》和住房和城乡建设部《关于城乡规划公开公示的规定》的有关要求,现将环保型高分子材料助剂生产项目建筑设计方案总平面图进行公示。
公示时间为2025年8月25日至2025年9月2日,为期七个工作日。
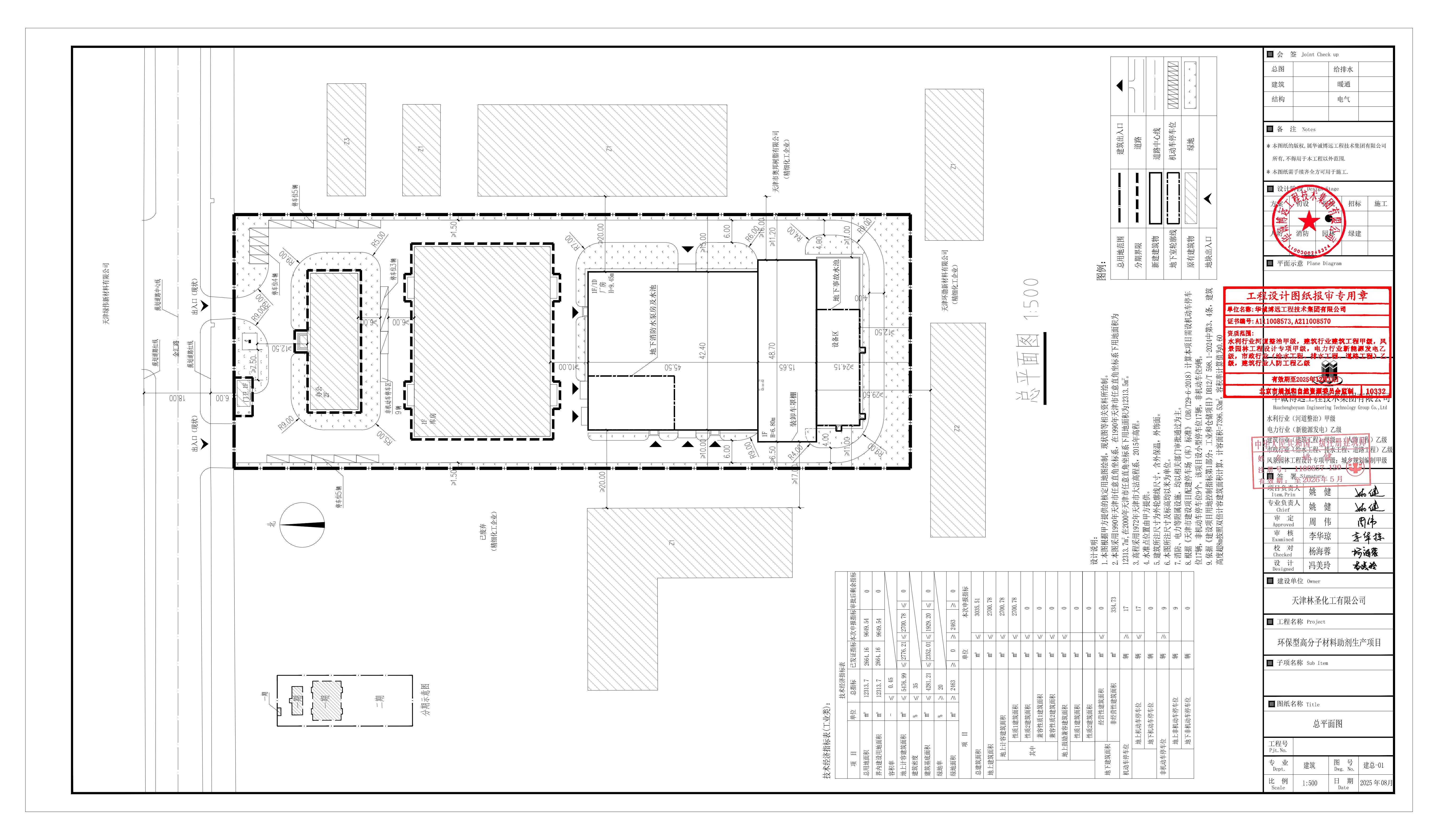
项目名称:环保型高分子材料助剂生产项目
项目位置:天津市滨海新区大港石化产业园区金汇路1335号
建设单位:天津林圣化工有限公司
设计单位:华诚博远工程技术集团有限公司
项目简介:本期新建工程包括厂房和装卸车罩棚,用地面积为9649.54平方米,总建筑面积为3035.51平方米,其中地上建筑面积为2700.78平方米,地下建筑面积为334.73平方米。
公示期间,周边单位及个人如对公示内容发表意见,请以电子邮件或电话方式反馈。
信函请寄:滨海新区于家堡融和路681号宝策大厦裙房行政许可服务中心
邮编:300450
联系人:邢燕
联系电话:022-66897974 (接听时间为 8:30—12:00,13:30-17:30)
邮 箱:gzjbhxqgs@163.com
天津市规划和自然资源局滨海新区分局
2025年8月25日
附图:建筑设计方案总平面图

主办单位:天津市规划和自然资源局滨海新区分局
推荐使用IE8及以上版本浏览器浏览
网站标识码:1201160001
联系方式:022-66223565