当前位置:首页> 政务公开> 最新文件

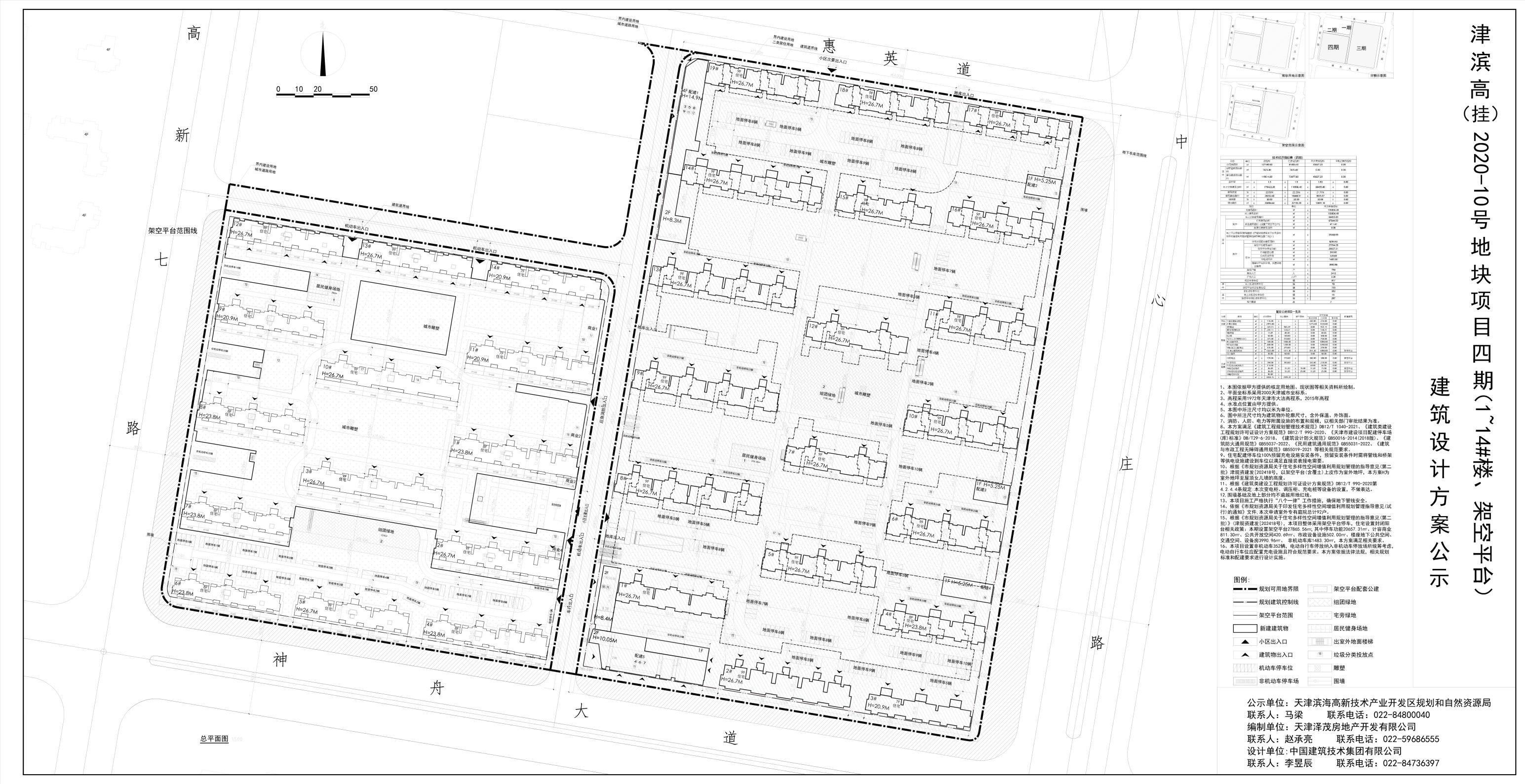
天津泽茂房地产开发有限公司津滨高(挂)2020-10号地块项目四期(1-14#楼、架空平台)项目建筑设计方案总平面图草案
发布日期: 2024-07-18 15:27      来源: 天津滨海高新技术产业开发区
字号:
  • 扫一扫在手机打开当前页

    依据《中华人民共和国城乡规划法》和住建部《关于城乡规划公开公示的规定》的有关要求,现将天津泽茂房地产开发有限公司津滨高(挂)2020-10号地块项目四期(1-14#楼、架空平台)项目建筑设计方案总平面图草案进行公示,公示时间共7个工作日。



    高新区规资局

    2024年7月18日

    主办单位:天津滨海高新技术产业开发区
    网站标识码:1201160063  |  备案序号:津ICP备09000137号-4  |   津公网安备 12019202000211
    联系方式:gxqwxb@tht.gov.cn | 推荐使用IE8及以上版本浏览器浏览

    主办单位:天津滨海高新技术产业开发区
    网站标识码:1201160063
    备案序号:津ICP备09000137号-4
     津公网安备 12019202000211
    联系方式:gxqwxb@tht.gov.cn | 推荐使用IE8及以上版本浏览器浏览