当前位置:首页> 政务公开> 最新文件

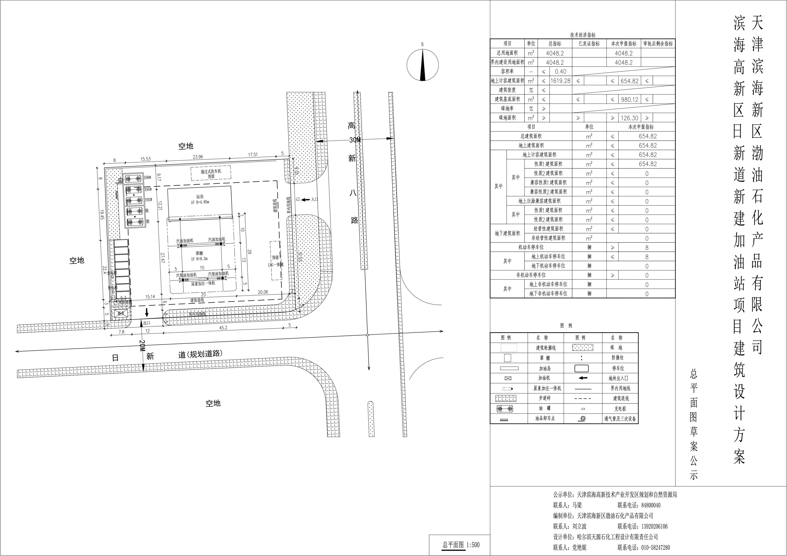
天津滨海新区渤油石化产品有限公司滨海高新区日新道新建加油站项目建筑设计方案总平面图
发布日期: 2024-07-26 17:01      来源: 天津滨海高新技术产业开发区
字号:
  • 扫一扫在手机打开当前页

    依据《中华人民共和国城乡规划法》和住建部《关于城乡规划公开公示的规定》的有关要求,现将天津滨海新区渤油石化产品有限公司滨海高新区日新道新建加油站项目建筑设计方案总平面图草案进行公示,公示时间共7个工作日,详情请查看附件。




    天津滨海高新技术产业开发区管理委员会

    规划和自然资源局

    2024年7月26日

    主办单位:天津滨海高新技术产业开发区
    网站标识码:1201160063  |  备案序号:津ICP备09000137号-4  |   津公网安备 12019202000211
    联系方式:gxqwxb@tht.gov.cn | 推荐使用IE8及以上版本浏览器浏览

    主办单位:天津滨海高新技术产业开发区
    网站标识码:1201160063
    备案序号:津ICP备09000137号-4
     津公网安备 12019202000211
    联系方式:gxqwxb@tht.gov.cn | 推荐使用IE8及以上版本浏览器浏览